Aller à :

  • Aller à la recherche
  • Aller au menu principal
  • Aller au contenu
0
  • Accueil
  • Ventes
  • Locations
  • Gestion
  • Estimation
  • ESPACE ADB NET
  • Contact
0
VotreRecherche
Dans un rayon de
Budget
entre et €
Min €
Max €
  1. Agence immobilière à Grisolles
  2. Vente
  3. Haute garonne
  4. Aussonne
  5. Appartement
  6. T2
  7. T2 bis jardin parking
Exclusif
Coup de coeur
Réf : 4156
Appartement
T2 Bis - Jardin - Parking
Nombre de pièces 2
Nombre de chambres 1
Salle d'eau 1
TRAD_MELTEM_Superficieterrainenm² 40 m²
135 000 €

T2 Bis - Jardin - Parking Aussonne (31840)

Sur la commune d'Aussone :

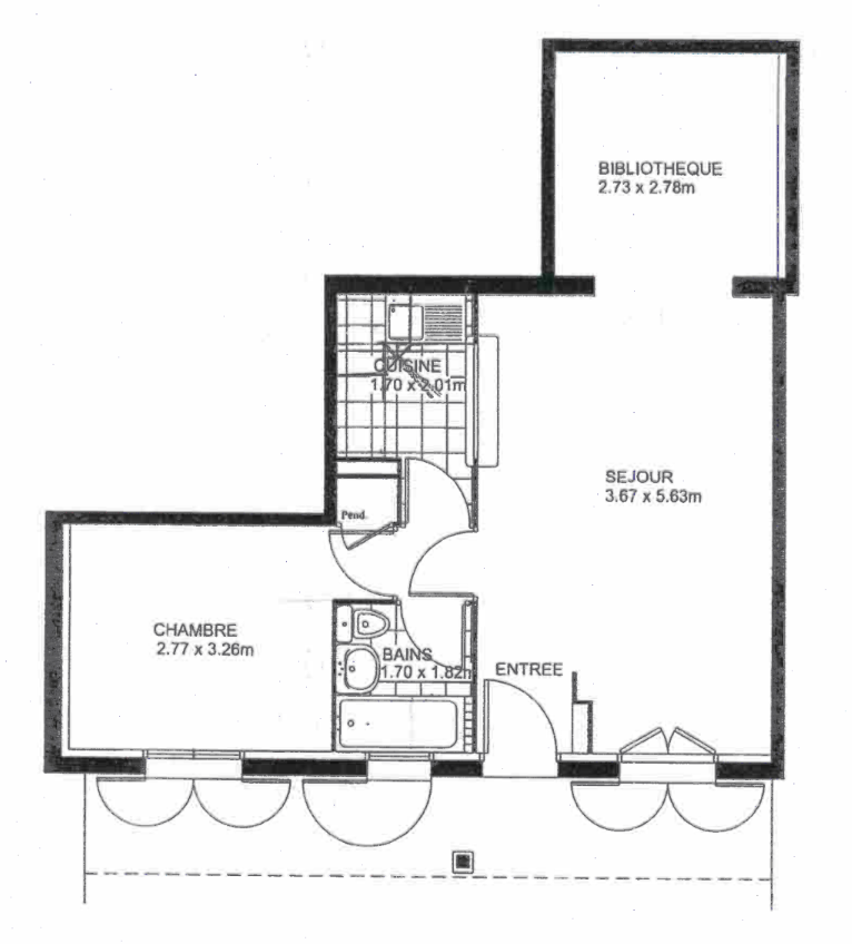
Venez découvrir ce T2 Bis pour une surface d'environ 46 m². Il se compose d'une entrée, séjour, cuisine, bureau, couloir, salle d'eau/WC. Jardin privatif et terrasse pour une surface totale d'environ 40 m².

Place de parking couverte et box de rangement dans les parties communes.

Le bien se situe dans une copropriété. Pas de procédure en cours. Charge annuelle environ 584€.

  • Général
  • Détails +
  • Copropriété
  • Financier
  • DPE
  • Quartier
Caractérisque Valeurs
Code postal 31840
Surface habitable (m²) 46,50 m²
surface terrain 40 m²
Surface loi Carrez (m²) 46,50 m²
Nombre de chambre(s) 1
Nombre de pièces 2
Caractérisque Valeurs
Nb de salle d'eau 1
Cuisine Américaine
Mode de chauffage Electrique
Type de chauffage Convecteur
Format de chauffage Individuel
Terrasse OUI
Murs mitoyens 2
Nombre de garage 1
Année de construction 2008
Caractérisque Valeurs
Copropriété OUI
Lot n° 522
nombre de lots 120
Quote Part annuelle des charges 584 €
plan de sauvegarde NON
statut du syndic pas de procédure en cours
Caractérisque Valeurs
Prix de vente 135 000 €
Les honoraires d'agence seront intégralement à la charge du vendeur  
DPE GES
  • Commerces et santé
  • Loisirs
  • Ecoles
  • Transports
  • Pratique
Cette offre
vous intéresse

* champs obligatoires

Les informations recueillies sur ce formulaire sont enregistrées dans un fichier informatisé par La Boite Immo agissant comme Sous-traitant du traitement pour la gestion de la clientèle/prospects de l'Agence / du Réseau qui reste Responsable du Traitement de vos Données personnelles. La base légale du traitement repose sur l'intérêt légitime de l'Agence / du Réseau. Elles sont conservées jusqu'à demande de suppression et sont destinées à l'Agence / au Réseau. Conformément à la loi « informatique et libertés », vous disposez des droits d’accès, de rectification, d’effacement, d’opposition, de limitation et de portabilité de vos données. Vous pouvez retirer votre consentement à tout moment en contactant directement l’Agence / Le Réseau. Consultez le site https://cnil.fr/fr pour plus d’informations sur vos droits. Si vous estimez, après avoir contacté l'Agence / le Réseau, que vos droits « Informatique et Libertés » ne sont pas respectés, vous pouvez adresser une réclamation à la CNIL. Nous vous informons de l’existence de la liste d'opposition au démarchage téléphonique « Bloctel », sur laquelle vous pouvez vous inscrire ici : https://www.bloctel.gouv.fr Dans le cadre de la protection des Données personnelles, nous vous invitons à ne pas inscrire de Données sensibles dans le champ de saisie libre.
Ce site est protégé par reCAPTCHA, les Politiques de Confidentialité et les Conditions d'Utilisation de Google s'appliquent.

Partager le bien
Nos outils
Imprimer Imprimer
Calculatrice financière

* Champ obligatoire

Partager l'annonce

* champs obligatoires

Les informations recueillies sur ce formulaire sont enregistrées dans un fichier informatisé par La Boite Immo agissant comme Sous-traitant du traitement pour la gestion de la clientèle/prospects de l'Agence / du Réseau qui reste Responsable du Traitement de vos Données personnelles. La base légale du traitement repose sur l'intérêt légitime de l'Agence / du Réseau. Elles sont conservées jusqu'à demande de suppression et sont destinées à l'Agence / au Réseau. Conformément à la loi « informatique et libertés », vous disposez des droits d’accès, de rectification, d’effacement, d’opposition, de limitation et de portabilité de vos données. Vous pouvez retirer votre consentement à tout moment en contactant directement l’Agence / Le Réseau. Consultez le site https://cnil.fr/fr pour plus d’informations sur vos droits. Si vous estimez, après avoir contacté l'Agence / le Réseau, que vos droits « Informatique et Libertés » ne sont pas respectés, vous pouvez adresser une réclamation à la CNIL. Nous vous informons de l’existence de la liste d'opposition au démarchage téléphonique « Bloctel », sur laquelle vous pouvez vous inscrire ici : https://www.bloctel.gouv.fr Dans le cadre de la protection des Données personnelles, nous vous invitons à ne pas inscrire de Données sensibles dans le champ de saisie libre.
Ce site est protégé par reCAPTCHA, les Politiques de Confidentialité et les Conditions d'Utilisation de Google s'appliquent.

Détail des diagnostics énergétiques
DPE GES
DPE en cours

Partager avec vos proches

Facebook Facebook
Messenger Messenger
Twitter Twitter
WhatsApp WhatsApp
LinkedIn LinkedIn
Copier le lien Copier le lien
Autres biens

Ces biens peuvent aussi vous intéresser

Terrain

GRENADE - Terrain à bâtir 500 m²

Grenade (31330)
Voir le bien
Terrain

Terrain à bâtir - Viabilisé - 500 m²

Grenade (31330)
Voir le bien
Contacter
l'agence

Remplissez ce formulaire, nous ferons de notre mieux pour vous répondre dans les meilleurs délais.

Fleys Immobilier
05.63.64.19.22
E-mail fleys2@wanadoo.fr

3 Place Bernard Marceillac 82170 Grisolles

TRAD_MELTEM_voscoordonnees
TRAD_MELTEM_voredemande
Règlementation

* Champ obligatoire

Les informations recueillies sur ce formulaire sont enregistrées dans un fichier informatisé par La Boite Immo agissant comme Sous-traitant du traitement pour la gestion de la clientèle/prospects de l'Agence / du Réseau qui reste Responsable du Traitement de vos Données personnelles. La base légale du traitement repose sur l'intérêt légitime de l'Agence / du Réseau. Elles sont conservées jusqu'à demande de suppression et sont destinées à l'Agence / au Réseau. Conformément à la loi « informatique et libertés », vous disposez des droits d’accès, de rectification, d’effacement, d’opposition, de limitation et de portabilité de vos données. Vous pouvez retirer votre consentement à tout moment en contactant directement l’Agence / Le Réseau. Consultez le site https://cnil.fr/fr pour plus d’informations sur vos droits. Si vous estimez, après avoir contacté l'Agence / le Réseau, que vos droits « Informatique et Libertés » ne sont pas respectés, vous pouvez adresser une réclamation à la CNIL. Nous vous informons de l’existence de la liste d'opposition au démarchage téléphonique « Bloctel », sur laquelle vous pouvez vous inscrire ici : https://www.bloctel.gouv.fr Dans le cadre de la protection des Données personnelles, nous vous invitons à ne pas inscrire de Données sensibles dans le champ de saisie libre.
Ce site est protégé par reCAPTCHA, les Politiques de Confidentialité et les Conditions d'Utilisation de Google s'appliquent.

Se connecter
Espace propriétaire
Page d'accueil
Adhérents

© 2026 | Tous droits réservés | Traduction powered by Google |

  • Nos honoraires
  • Plan du site
  • Mentions légales
  • Admin
  • Nos liens
  • Politique RGPD
  • LinkedIn

TRAD_LBI_cookies_comme_beaucoup_notre_site TRAD_LBI_cookies_utilise_les_cookies

TRAD_LBI_cookies_text1 TRAD_LBI_cookies_text2

TRAD_LBI_cookies_parametrer

TRAD_LBI_cookies_type_function_titreTRAD_LBI_cookies_type_function_text

TRAD_LBI_cookies_type_analyse_titreTRAD_LBI_cookies_type_analyse_text

?

Google Analytics

TRAD_LBI_cookies_en_savoir_plus